Ogłoszenie #2402791
Dom w Borzęcinie #2402791
kategoria :
e-mail :
ukryty - użyj formularza odpowiedzi
miejscowość :
Tarnów
data ważności :
2026-04-30 (dodane: 2026-04-16 09:05)
cena :
740000 zł
wyświetleń :
728
Na sprzedaż nieruchomość w miejscowości Borzęcin. Dom o całkowitej powierzchni 230 m² , użytkowej 169 m² znajduje się na 12-arowej działce, z możliwością dokupienia kolejnych 12 arów. Budynek charakteryzuje się solidnym wykończeniem – dach pokryty dachówką, ocieplony, z energooszczędnymi plastikowymi oknami oraz parkietem w całym domu. Dom jest wyposażony w dwufunkcyjny kocioł marki Vaillant który służy do ogrzewania, a także grzania wody.
Na parterze domu znajduje się przestronny salon z kominkiem i wyjściem na taras. Kuchnia do własnej aranżacji . Pokój gościnny jest doskonałym miejscem na zakwaterowanie gości lub może pełnić funkcję domowego biura. Łazienka na parterze zwiększa komfort codziennego użytkowania, a pomieszczenie gospodarcze oferuje dodatkową przestrzeń do przechowywania. Przedsionek stanowi eleganckie wejście do domu.
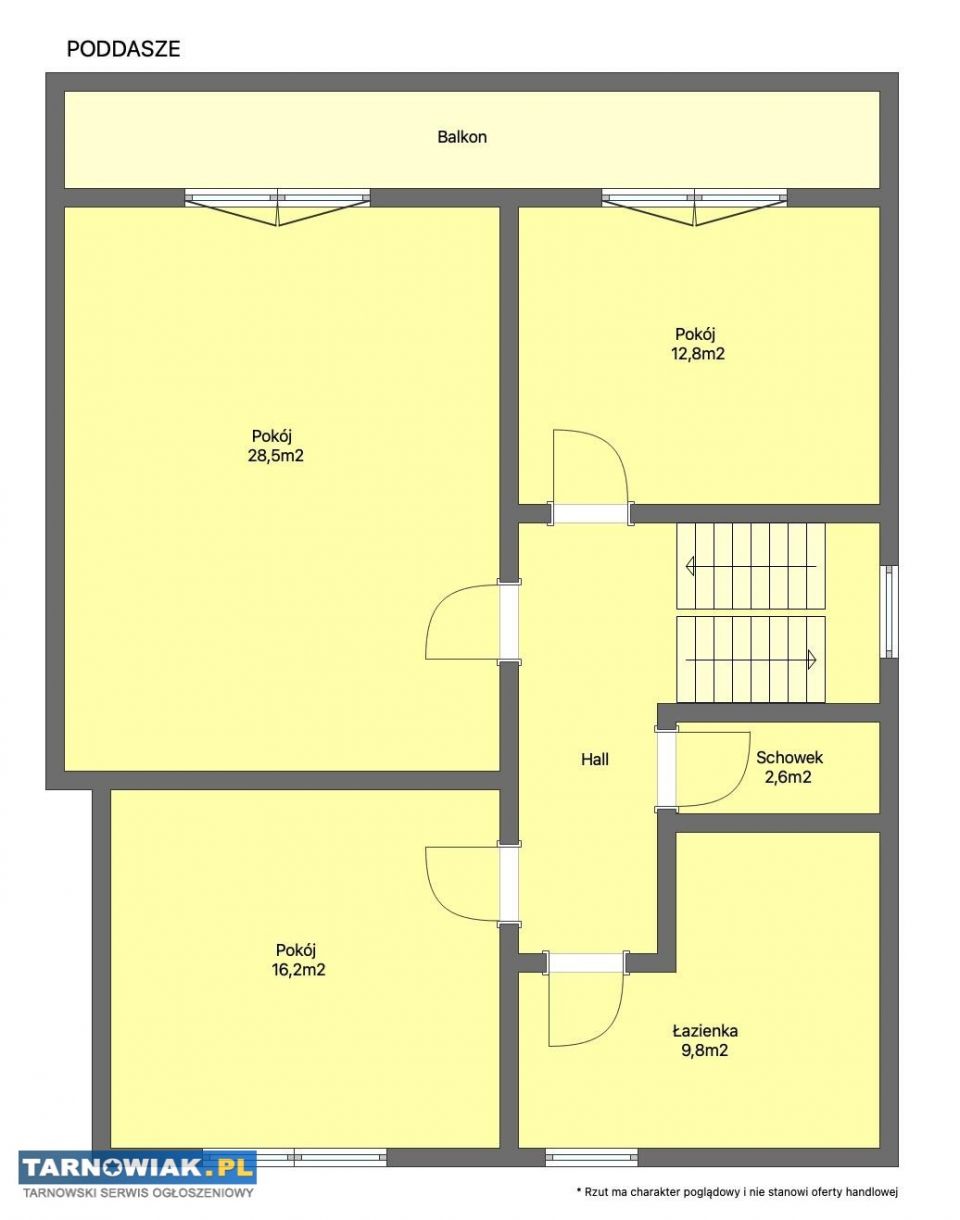
Piętro obejmuje trzy sypialnie, z których dwie mają wyjście na balkon. Duża łazienka z narożną wanną. Pomieszczenie gospodarcze na piętrze oferuje jeszcze więcej miejsca do przechowywania.
W piwnicy znajdują się kotłownia. Dwa pomieszczenia gospodarcze w piwnicy. Pralnia z prysznicem i toaletą stanowi wygodne rozwiązanie.
Dojazd do posesji prowadzi asfaltową drogą, a przed domem znajduje się wykostkowany podjazd otoczony zadbaną roślinnością. Duży ogród z tyłu domu.
WIĘCEJ (ZDJĘĆ ORAZ INFORMACJI) NA WWW.LOFT4NIERUCHOMOSCI.PL
Marcin Książek
tel. 509 422 094
Loft 4 Nieruchomości - Pokochaj nowe życie!
- 1. Dom na ul. Świętego Brata Alberta w Tarnowie daje szerokie ...
- 2. Dom z bali świerkowych w stylu góralskim, położony w urokli ...
- 3. Do sprzedaży przedstawiamy trzy działki budowlane z warunka ...
- 4. Do wynajęcia lokal o powierzchni około 90m2, zlokalizowany ...
- 5. Nieruchomość położona jest w Tarnowie przy ulicy Azotowej. ...
- 6. Dom wolnostojący z cegły wymagający remontu o powierzchni u ...
- 7. Działkę o powierzchni 1.38 ha. Sprzedawana nieruchomość pos ...
- 8. Nieruchomość, która spełni oczekiwania wielu osób szukający ...
- 9. Dom z lat 70, o powierzchni użytkowej około 74 m2, położony ...
- 10. Dom o powierzchni użytkowej ponad 120 m2, położony w miejsc ...
- 11. Dom położony jest w Mościcach przy ulicy Brzozowej w Tarnow ...
- 12. Działka budowlana o wielkości niewiele ponad dwanaście arów ...
- 13. Jeśli chcesz zamieszkać w cichej i urokliwej okolicy, to ta ...
- 14. Dom o powierzchni 118 m² na 40-arowej działce w miejscowoś ...












